
【國際朗灣133㎡】低飽和的浪漫,用光影勾勒的簡凈空間!

項目信息
PROJECT INFORMATION
地址/ 國際朗灣
城市/ 中國 杭州
戶型/ 四室兩廳
面積/ 133㎡
風格/ 現代簡約
設計施工/ 浙江南鴻裝飾
作品前言
ABOUT HOME
都市喧囂愈盛,人們也會更渴望生活的簡單與自由,現代簡約風格便是對這一訴求的精準回應——設計舍棄多余表象的色彩與裝飾材質,構建出具有呼吸感的流動空間,視覺留白與隱形化的收納體系,讓真實的品質感從細節處浮現。

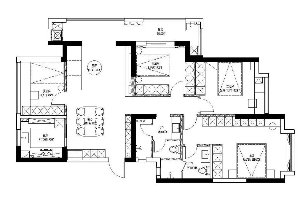
戶型方案
LAYOUT DESIGN

實景呈現
CASE APPRECIATION
No.1
玄關


入戶打造簡潔實用的玄關柜,滿足收納、掛衣、換鞋等需求,柔和的燈帶光烘托溫馨舒適的歸家感受。
No.2
客廳

與餐廳、陽臺的一體開放,客廳收獲了更大的空間感。背景面透過統一的色調與隱形門的方式,形成視覺上的完整延展,線條對塊面適度的切割劃分,為空間帶來有秩序的層次感。


低飽和度空間通過刪繁就簡的裝飾,營造敞朗大氣的現代質感。淺月白的沙發色澤溫柔,大面窗扇引入自然光影,化作室內最生動的裝飾。凝練克制的設計哲學,將實用功能轉譯為空間韻律,讓居者成為空間敘事的主角。
No.3
餐廳


餐廚動線緊密并通過玻璃移門相隔,冰箱外置,節省了廚房的空間。輕奢感石材餐桌搭配米色與黑色組合的餐椅,沉穩中顯出高級質地,玻璃柜的加入也為空間增添了更多通透感。
No.4
廚房

中廚區配置高效的U形動線,偏深灰的烤漆面櫥柜透著高級感,也便于日常打理。柜門拉手與家電均采用內嵌式設計,空間變得整潔大方、簡約又時尚。
No.5
主臥


安靜的主臥空間,延續了淺灰色系的溫和調性,明亮的自然光漫進,在細微之處巧妙平衡著生活美學。


豐富的儲物空間帶來整潔有序的感受,白色與木色穿插組合的衣柜拉出視覺上的延伸感,有藏有露滿足不同使用需求,梳妝臺區巧妙嵌入,并通過燈帶完善了小區域的照明。
No.6
兒童房

兒童房則轉用個性的青草綠色,演奏起青春洋溢的旋律。飄窗通過定制柜、書桌的形式改造為學習區,實現區域面積的高效利用。
No.7
衛生間

公衛的日常使用頻次較高,因此除了借主衛的一部分來拓寬面積之外,還利用三分離的設計,獨立劃分不同功能,避免早晚高峰可能會出現的使用沖突,提升居家幸福感。
免費
免費申請戶型規劃
專屬設計師免費1對1全程服務
已經有3759人申請
24小時免費咨詢電話
400-8800-618
你家預算
108080元