
海天城112㎡美式輕奢 | 客廳與書房結合,打造屬于他們的溫馨之家

本案的業主從事IT工作,家里常住人口為3人,有一個女兒。設計師結合屋主提出的需求優化空間布局,為這一家三口打造出了一個可以在忙碌生活中安心停靠的溫馨“港灣”~

項 目 名 稱:海天城
建 筑 面 積:112㎡
設 計 風 格:美式輕奢
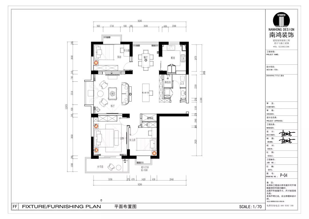
平 面 圖



1、客廳布局較為獨特,沙發呈非常規擺放,采用面對面的形式,借此創建出一個家庭核心區,拉近家人之間的聯系;
2、因為屋主對書房的私密性要求沒有那么高,所以書房就融入了公共區域,拓展視野,屋主也能在辦公的時候與家人共享美好時光。



客廳與開放式書房相結合,在燈光上選用了很多不同高度的點光源,如落地燈、臺燈、壁燈、筒燈等,層次鮮明,氛圍感十足,室內空間也因此變得更加通透敞亮。

客廳是交際暢談的空間,承載著家人對美好生活的憧憬,這種圍合式的布局對于渴望親情互動的業主一家來說真的再合適不過了!

客廳通鋪灰色地磚,加鋪一張素色地毯,并選用咖啡色皮質沙發,提升了整體的舒適性體驗。電視背景墻一側用白色石膏線裝飾,對應同色踢腳線,視覺上更為和諧統一。

▲客廳細節圖


從書房看向餐廳的視角。書桌背后為現場木工制作的書柜+儲物柜,能充分滿足屋主的收納需求。

餐廳與廚房之間以時尚的黑框玻璃門相隔,角落一側定制了小酒柜,墻上裝飾一幅金框風景畫營造就餐氛圍。愛馬仕橙色的餐椅與整個灰色調形成強烈的視覺撞擊感,為空間帶來溫暖活力的氣息。


廚房,白色櫥柜搭配黑色的拉手,簡潔利落,淺花色的臺面非常方便打理。


臥室的主色調偏淺咖,在燈光布置上與客廳類似,既有華麗的主燈,又有壁燈、射燈的參與,層次感很足,著重烘托出柔美而沉靜的氛圍。


衛生間做了干濕分離,洗手臺外置,方便每一次使用。黑色浴室柜與潔白的臺面形成鮮明反差,并輔以金色線條勾勒,細節之處更顯時尚。


陽臺添加了舒適的小沙發,抱枕還有邊幾,改造成一個愜意的休息場所,幫助屋主在忙碌工作后放松心情,消解疲憊~
家的每一處設計并不是為了設計而設計,更多是要從居住者的生活習慣出發。根據居住者的愛好去量身定做相適合的家居設計,而每一處的設計,每一個家居的擺放都是經過我們充分的考慮,簡約中流露著靈動美,在每一個不經意的瞬間讓人怦然心動。
免費
免費申請戶型規劃
專屬設計師免費1對1全程服務
已經有3759人申請
24小時免費咨詢電話
400-8800-618
你家預算
108080元