
唯美莫蘭迪色組合高級灰的混搭空間,左手是生活,右手是藝術
【項目·信息】
地址 / 望江府
戶型 / 平層
面積 / 139㎡
風格 / 混搭風格
設計施工 / 浙江南鴻裝飾
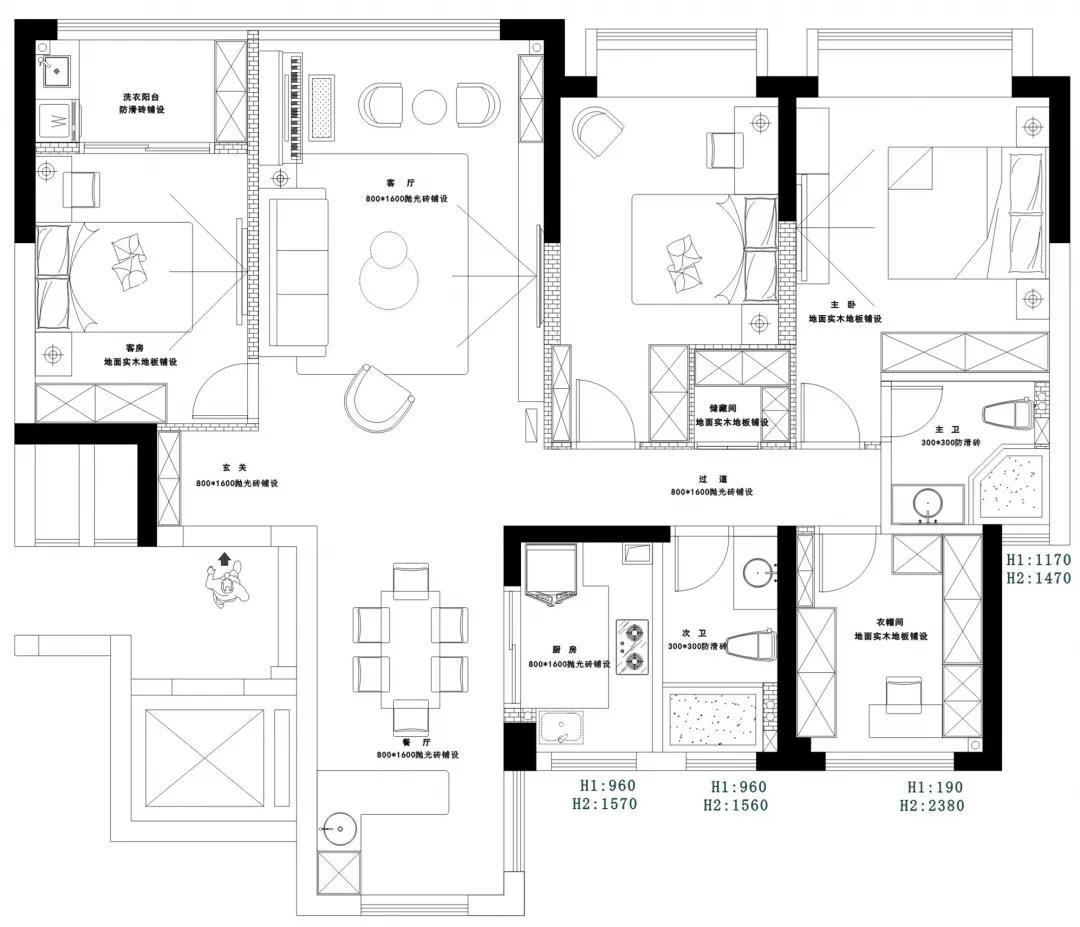
01. 客戶需求 本案的屋主非常喜歡小美式風格的清新自在,又向往著現代簡約所傳達的生活理念,所以設計師依照他的喜好,將兩種風格元素巧妙糅合,讓整體空間在浪漫優雅的情調中傳遞出主人的獨特品味。 02. 裝飾亮點 REFRESHING 擯棄了粗暴的材質堆砌,將小美式與現代簡約巧妙結合在一起,色調上選用低飽和度的高級灰與柔和的莫蘭迪色,致力于呈現一個唯美純粹、具備高級感的美學空間。 03. 戶型圖 04. 設計落地 客 廳 客廳以高級灰為主基調,低飽和度的特性使得它具備很強的包容性。 電視背景將美式的經典線條護墻與利落的大理石磚組合,沙發背景則做了木護墻隱形門處理,配以簡單干凈又不減細節的吊頂,既實現了兩種不同風格元素的結合,又能讓造型為居家功能服務。 靠近陽臺擺放一把亮麗單椅,電子壁爐內躍動著溫暖的火苗,成為美妙的休憩一角。 節制而有意蘊的設計手法,賦予空間最具詩意的內涵表達。 開放的領域中,客餐之間連貫而又相對獨立,在敞闊的尺度中讓主人感受到家的舒適。 餐 廳 餐廳,是讓人走近便頓覺眼前一亮的空間所在。花朵般嬌嫩的煙粉色,是莫蘭迪色系中超有存在感的一派,又如晚霞,純凈美好,撲面而來便是夢幻與浪漫的氣息。 餐廳處還添加入西廚的功能,讓廚房實現多功能化,同時弱化了原區域的狹長感。 過 道 “人生忽如寄,莫辜負茶、湯和好天氣。”清朗平和的過道景致,自給人一種寧靜的深邃感受。 臥 室 臥室刪繁就簡,通過淺色的床品與干凈的硬包背景,營造簡約純粹的清韻。 兒童房是一個多姿多彩的空間,活潑的星星圖案,多種低飽和色調搭建的背景墻面,整體氣氛輕松愉悅,作為一個成長型空間來說也充滿著可塑性。 衣 帽 間 純白的視象,抽離了所有多余的表達,兩側衣柜默默擔當著收納的使命,井然有序地包容著一切冗雜。

















免費
免費申請戶型規劃
專屬設計師免費1對1全程服務
已經有3778人申請
24小時免費咨詢電話
400-8800-618
你家預算
108080元