
192㎡三室兩廳,胡桃木引領潮流,開放式餐廚是真的香!

【項目·信息】
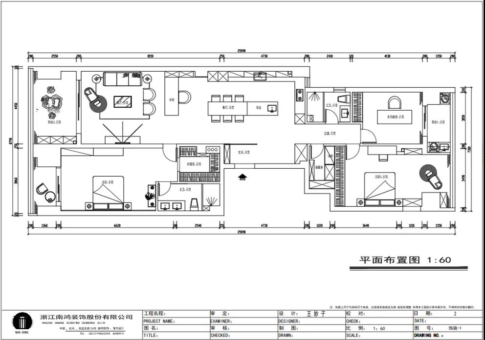
地址 / 京港國際
戶型 / 三室兩廳
面積 / 192㎡
風格 / 現代風格
設計施工 / 浙江南鴻裝飾
業主是一對年齡45歲左右的夫妻,事業穩定,家庭幸福。夫妻二人熱衷各類美食料理,所以對家里廚房的設計更加重視。 總體來看,戶型面積很大,三室兩廳的格局留給了公區域相當寬敞的可使用空間。設計與選材上秉承現代風格的原則,強調理性而寧靜的室內氛圍,穩重的木料與明朗的石材相配,實現物質與精神的雙重安放。 1、正門對廚房,以豎條木格柵做隔斷。 2、客餐廳兩塊區域中間做一個書吧用以分隔空間,增加層次性。 3、做開放式廚房,餐桌增添島臺,提升空間利用率與家人互動性。 4、北陽臺和女兒房打通,擴充女兒房的使用面積。 玄關 ENTRANCE 入戶玄關以深色的木格柵阻隔視線,既是風水上的考慮,又很好保護了室內隱私。地面通鋪白色瓷磚串聯內外,關于家的第一印象便在此構建。 細木條元素自帶美感,光影的變幻交錯間,涌動出不凡的藝術張力。 客廳 LIVING ROOM 低飽和度色彩與明朗的線條,傳達著主人對簡約品質生活的追求和向往。全屋頂面統一做無主燈裝飾,嵌入6毫米黑色金屬條,極細的線條感透出設計的巧思與靈動之美。 空間以簡潔敞亮的硬裝基礎,搭配素凈的顏色與舒適的軟裝,深色木質元素在其間跳躍點綴著,中和剛冷的石材光澤。 電視機嵌入大理石背景,墻面紋理與地呼應,下開收納格取代傳統電視柜的位置,立面干凈,層次更在一深一淺中凸顯。 視線無論由無主燈頂面還是地面延展,均是順暢無比,大戶型的氣派一覽無余。 客餐之間由小書吧自然過渡,可以當作一個開放式的書房使用,讀書、辦公、品茶、娛樂等多重功能恣意交互,單一空間由此衍生出諸多使用情境。 餐廳 DINING ROOM 餐廳與門廳相鄰,開放式餐廚設計滿足主人的所有美好想象。餐桌的胡桃木色與島臺、廚房的淺色形成對比,雅致的古韻與鋒利的現代感交匯,成為這個家個性的一面展示。 清晰筆直的黑白線條拉伸空間縱深感的同時,也讓客廳和餐廚的視野更顯朗闊。 溫潤的胡桃木紋理典雅大方,空間的詩意氛圍在簡約的線條層次中被有力烘托出來。 廚房 KITCHEN 既可以擴充廚房操作臺面,又能當吧臺使用的島臺,和餐桌結合在一起,大大增加了使用頻率,搭配上款式輕盈的吧臺凳,毫無疑問是餐廚區的顏值與實力擔當。 開放式布局將廚房和餐廳融為一體,潔白柜體把嵌入式電器隱含其中,寬大的臺面足以滿足日常烹飪需求,環形的動線則可以讓人穿梭其中行走自如。 臥室 BEDROOM 主臥背景墻以灰色墻布和木飾面結合,細膩紋理展現有機的溫暖、純凈,燈光被有序在墻頂面安置,讓人倍感安神,又不失高雅格調。 床頭壁燈的瑩瑩微光,帶來夜的凝思。床尾放一把小羊羔絨椅,圓潤線條惹人喜愛。光影之間,居室氣質自顯。 寧靜灰是次臥的主導色,納入的陽臺讓室內采光更加充足,滿滿當當的柜體則將空間的收納力放大到極致。 陽臺被細心布置為休閑一角,為主人譜寫出愜意的生活橋段。 衛生間 BATHROOM 衛生間整體保持極簡的格調,黑白配色更顯潔凈,臺盆柜纖巧落地,視覺上倍感輕盈。



























上一篇:原來封陽臺有那么多好處!
免費
免費申請戶型規劃
專屬設計師免費1對1全程服務
已經有3778人申請
24小時免費咨詢電話
400-8800-618
你家預算
108080元