
復古摩登中古風,用時光喚醒的“絕色”
成長與歲月,均被鐫刻在此處
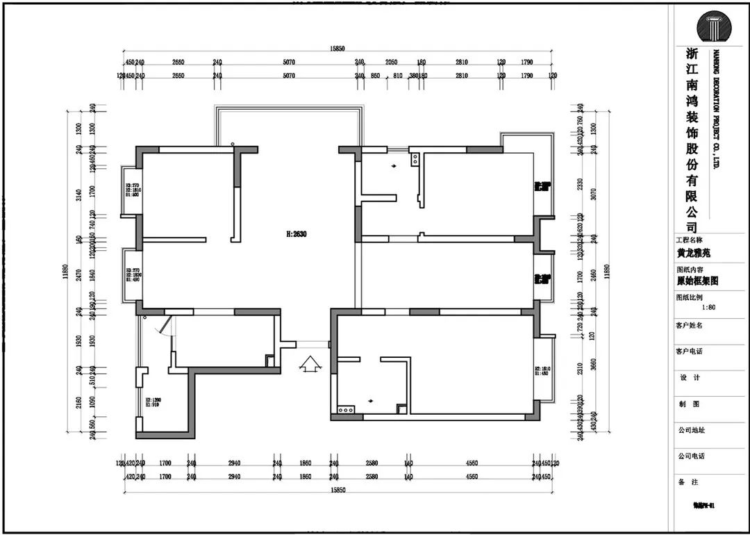
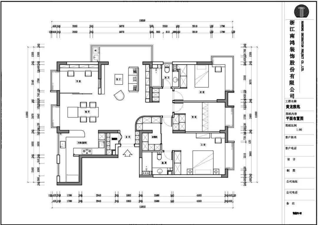
我們不重復過去,我們喚醒過去, 并以同樣的精神指向未來。 —— Ian Schrager 本期這所米米的暖暖的中古屋,擁有者是一對年輕的新婚夫婦,他們是志同道合的朋友,亦是相知相伴的愛侶,生活對他們來說充滿著無限的可能。 就算歷經漫長歲月卻依然舒適實用,一款家居風格的好絕不僅僅在它的“外表”,設計感與實用性的雙強才是經久不衰的秘訣。 以胡桃木為主材質搭建的古樸空間中,材質、線條與光線共同擔當起了絕佳的質感雕刻師,并為空間添上了一層文藝唯美的濾鏡。而在戶型格局上,設計運用隔而不斷的理念,將原本獨立的空間融會貫通,創造出開放、延展的自由體驗。 被時光洗禮過的木質家具,誕生出一種對悠閑慢生活的向往,輔以流暢的生活動線、通達的空間布局,為居住者營造出了這個舒適又溫馨的家庭共享空間。 原始戶型圖 / 原戶型存在的問題有: 餐廳太小且過于獨立,與客廚不夠緊密;書房過大,浪費空間;主臥沒有衣帽間;廚房太小且采光不好等。 設計優化 平面方案圖 / 設計改動: ①將書房的部分空間借給餐廳,并設計移門,擔當餐廳一面背景的同時也不影響區域的通透感。 ②東邊陽臺包進客廳并做整面的落地玻璃,把光線全數引進,并設計了休閑閱讀區和家政柜,提升空間的利用率。 ③主臥做墻體改動規劃出衣帽間,弧形的墻面使空間柔和不生硬。 ④原戶型中廚房旁有個小的保姆房,重組后做成了一個面積富裕的開放式廚房,整個北面的采光變得非常好。 ONE. 客廳 Living Room / 空間墻面使用米色作為大基調,與陽臺合并使用后,極大增強了縱向感,視覺非常的開闊敞亮。 陽臺處堆疊了洗衣機烘干機,由于有墻體深度的遮擋,所以并不會影響空間的美觀。電視背景留白設計,加上懸浮式電視柜,輕松營造呼吸感。 沙發背后做封閉式書柜,打造精神食糧的儲藏庫。門洞、過道皆以弧線、弧面展示,為空間增添柔和氛圍與幾何美感。潔凈的頂面與室內滿滿的自然氣息彼此相襯,用外在的簡凈折射出內里的豐盈。 在這樣安定、綿長的空間里,時間的腳步緩了下來,生活的本來面貌便越發地清晰。 TWO. 餐廳 Dining Room / 客餐廚三者的互動關系一目了然,通達的公共空間在節奏上就令人感到暢快。通鋪的地板、相似的材質色澤,將家的不同區域納入到一個完整體之中。 家要有煙火氣息,生活才能有滋有味。餐廳設計延續自然美學,無聲釋放著溫暖又愜意的安心感。餐桌+島臺可滿足備餐、用餐、小酌、工作等多種需求,如日劇中的場景構建,讓烹飪、就餐都變成了一天中值得期待的事情。 餐廳與書房使用木框玻璃移門隔斷,朦朧的光影效果既成就了一面文藝風的背景,又賦予了居室通透鮮活的場景氣氛。 一抹綠意恰如其分地參與到空間中,也是“人與自然本為一體”的彰顯。設計的考量關涉宏觀的布局,亦關涉極細微的場景體驗,在細節中方能塑造出家的脈絡紋理。 THREE. 廚房 Kitchen / 半開放式廚房通過吧臺與餐廳產生了有趣的互動,在消除束縛感的同時,也使采光、通風及動線都得到最優解答。 廚房的格局可謂循序漸入、層層遞進,合并原本的保姆房后,空間獲得了充足的實用面積。白色吊柜與木質地柜組合,充斥著柴米油鹽的日常也變得溫馨而美好。 FOUR. 臥室 Bedroom / 主臥延續簡單卻高級的設計手法,在滿足整潔、宜居、舒適等基礎需求之外,也回應了主人對質感和格調的訴求,真正實現內心世界的安放。飄窗用曲線構造休閑區,敘述著生活的安寧與美好。 通過對墻體的改造優化,臥室內的儲物空間得到大大增加,動線也變得富有趣味。衣柜融入墻面,不占用任何多余空間。 FIVE. 書房 Study / 書房打造占據整塊墻面的長書桌,可供夫妻二人共同使用。書架上擺滿了他們喜愛的各式物品,滿眼皆是幸福。 SIX. 衛生間
上一篇:新作 | 南洋晚風熏人醉




















免費
免費申請戶型規劃
專屬設計師免費1對1全程服務
已經有3778人申請
24小時免費咨詢電話
400-8800-618
你家預算
108080元